׼

ұ׼

ǰλ: վҳ >> ׼ >> ұ׼ >>

GB/T10609.3-2009 ͼͼ۵

ߣԴұ׼ȫĹϵͳ Ķ ڣ20100901

ǰ  

GB/T 10609ͼΪ4֣

GB/T 10609.1 ͼ

GB/T 10609.2 ͼ ϸ

GB/T 10609.3 ͼ ͼǷ

GB/T 10609.4 ͼ ΢ԭҪ

Ƕ GB/T 10609.31989ͼ ͼ۵޶

Ҫ޸ĵУ

еGBΪ GB/T

ȥ淶ļеGB/J 1

Ӹ¼AͼA.1ƣ

ͼA.1 еġ4?60.5޸Ϊ4?60.5

ֵĸ¼AΪ淶Ը¼

ȫƷļ׼ίԱᣨSAC/TC 146ڡ

ݵλлٽġ´ѧƼѧ

Ҫˣݡǿ㡢ޱá¡

׼ΰ汾Ϊ

GB/T 10609. 3һ1989



 

1. Χ

GB/T 10609 ıֹ涨˼ͼиͼ۵

ֹ۵۵ĸͼйصļļƸֹ鵵͹Լ۵ʱɲʹá

2 淶ļ

ļеͨGB/T 10609ıֵöΪֵעڵе޸ĵ޶ڱ֣ȻݱִЭĸоǷʹЩļ°汾Dzעڵļ°汾ڱ֡

GB/VT 14689 ͼ ͼֽ͸ʽGB/T 146892008ISO 54571999Technical product documentationһSizes and layout of drawing sheetsMOD

3 Ҫ

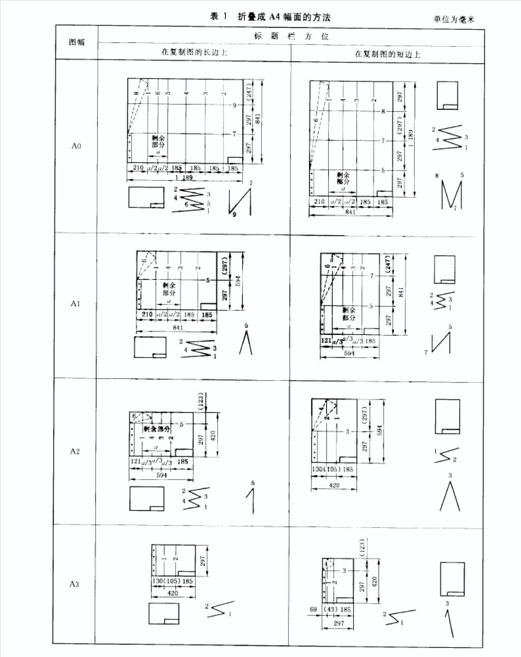
3.1 ۵ͼֽһӦA4210 mm297 mm A3297 mm420 mmĹ񡣶װɲװߵĸͼ۵ijߴ190 mm297 mm297 mmx400 mmճװ¼A۵ͼϵıӦ¶档

3.2 ۲ú˾۵ͼϵıӦ¶档

3.3 ҪɴGB/T 10609 ıѡȡһֹ涨۵

4 ۵

4.1 װɲĸͼ

4.1.1 װߵĸͼ

رĶ̱߷۵Ȼرij߷۵ڸͼϽ۳IJرߣA4A3Ĺʹ¶棬1ͱ2ʾ

4.1.2 װߵĸͼ

رĶ̱߷۵Ȼرij߷۵190 mm 297 mm 297 mm400 mmĹʹ¶棬װ3ͱ4ʾ

4.2 װɲĸͼ

װɲĸͼ۵֡

4.2.1 һ۵

رij߷۵ȻرĶ̱߷۵A4A3Ĺʹ¶棬5ͱ6ʾ

4.2.2 ڶ۵

رĶ̱߷۵Ȼرij߷۵A4A3Ĺʹ¶棬7ͱ8ʾ



4.3 ӳ渴ͼ۵

ݱͼֽϵķλɲǰ۵

4.3.1 װɲļӳ渴ͼ

װߵļӳ渴ͼλڸͼijʱ1ͱ2ɽӳͼ߲۳210 mmA4420 mmA3ٽಿ۳ɵڻС185 mmA4395 mmA3ijߴ磬ʹ¶档

λڸͼĶ̱ʱ1ͱ2ɽӳͼij߲۵ɵڻС297 mmijߴ磬ʹ¶档

װߵļӳ渴ͼλڸͼijʱ3ͱ4ɽӳͼij߲۵ɵڻС190 mmA4400 mmA3ijߴ磬ʹ¶档

λڸͼĶ̱ʱ3ͱ4ɽӳͼij߲۵ɵڻС297 mmijߴ磬ʹ¶档

4.3.2 װɲļӳ渴ͼ

λڸͼijʱ567ͱ8ɽӳͼļӳ֣۵ɵڻС210 mmA4420 mmA3ijߴ磬ʹ¶档

λڸͼĶ̱ʱ567ͱ8򽫼ӳͼij߲֣۵ڻС297 mmijߴ磬ʹ¶档


¼ A

淶Ը¼

װijߴ

װɰͼA.1ʾijߴ



ԭӣhttps://openstd.samr.gov.cn/bzgk/gb/newGbInfo?hcno=E9FE04ADF21CE0079CA52ABF4B4E81B4


һGB/T25064 Ϣȫ Կʩ ǩʽ淶 һGB/T 24573-2009 ͵ͻ鷽